跳到主要內容

國立科學工藝博物館

Menu

全部訊息

113-11-25

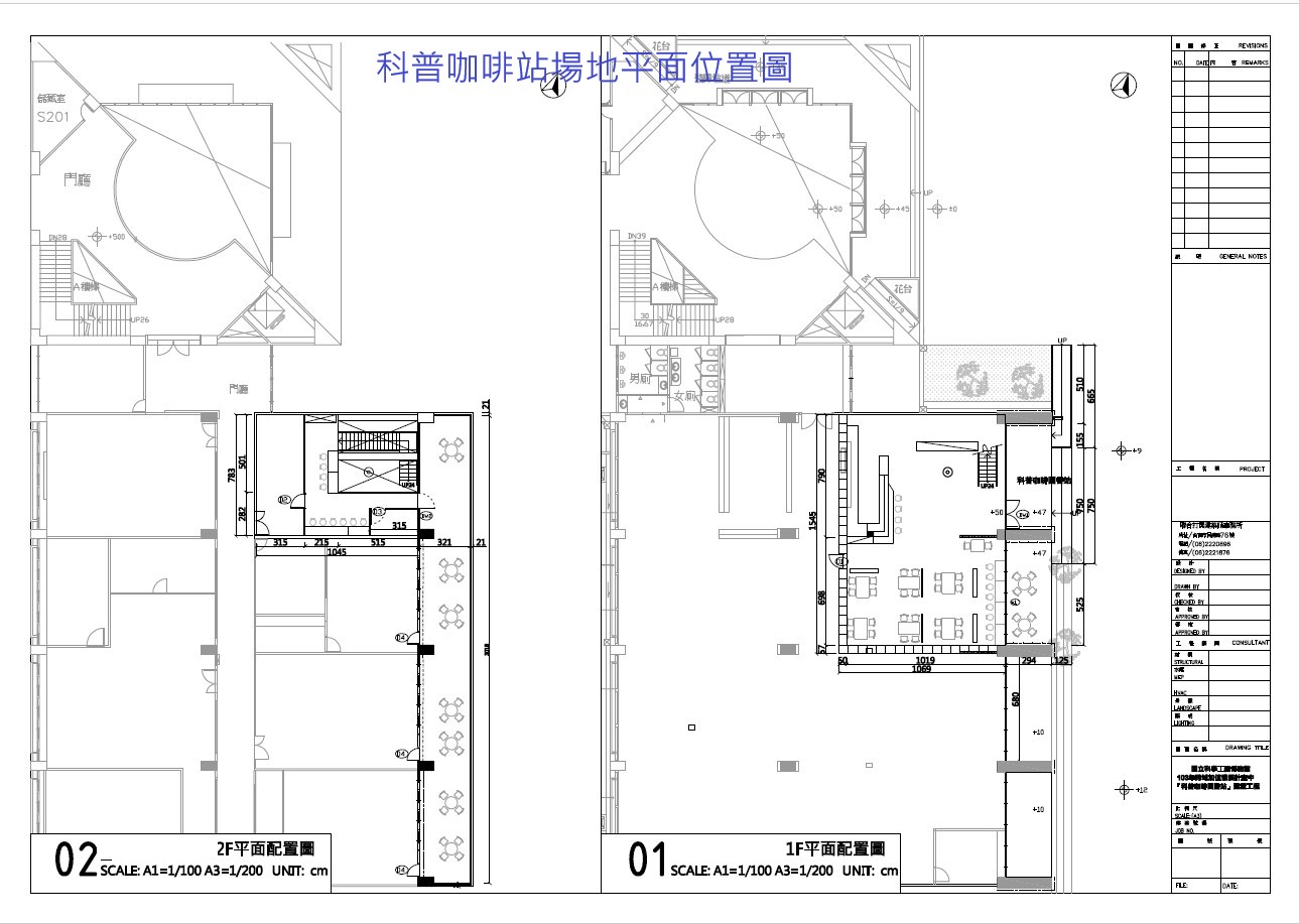
本館南館1樓「科普咖啡站」場地標租租賃案(案號R113088)自即日起公開領標

發佈單位:資訊作業小組 點閱率:1074

本館南館1樓「科普咖啡站」場地標租租賃案(案號R113088)自即日起公開領標,113年12月9日17時0分截止投標,並於113年12月10日14時00分於本館秘書室會議室開標,招標文件請自行下載,並依文件內容投標。

 

標單請於截止時間前寄(送)達本館秘書室,地址:807高雄市三民區九如一路720號(地下1樓)。

 

領、投標相關問題請洽:秘書室 陳小姐 電話:07-3800089#8620

 

場地勘查或標租內容問題請洽:公共服務組 莊小姐 電話:07-3800089#6704

 

附加說明:

  1. 本案為公開標租之場地出租,預計收入不低於新臺幣64萬8,000元整。(契約期間2年)
  2. 本案訂定底價但不公告。
  3. 決標方式:最高標(不得低於本館核定底價)。

 

特別提醒事項:

  1. 請投標廠商於領標後,隨時注意等標期間招標機關是否刊出更正公告(投標期限展延、內容更動、其他)等情況,以便及時下載更正後招標文件,確保領標文件正確性。
  2. 本案領標及投標期限與開標日期如因颱風、地震或其他特殊因素經上級主管機關公佈停止上班時,以其次一辦公日之同一領標及投標截止時間代之,原訂開標時間亦一併順延至次一辦公日之同一開標時間辦理開標。
延伸閱讀:
以QR Code分享本館南館1樓「科普咖啡站」場地標租租賃案(案號R113088)自即日起公開領標
QR Code
Top